產品描述

| QGB18X剪叉式前移叉車參數表 | |||||
| 代號 | 公制 | ||||
| 特征 distinguishing mark | |||||
| 1.1 | 品牌 | Manufacturer | 加力 | ||
| 1.2 | 型號 | Model designation | QGB18X | ||
| 1.3 | 動力形式 | Drive unit | 電動 | ||
| 1.4 | 操作類型 | Operator type | 站駕式 | ||
| 1.5 | 載荷 | rated capacity | Q | kg | 1800 |
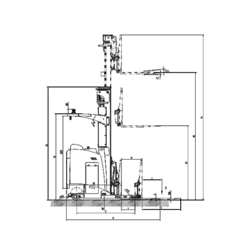
| 1.6 | 載荷中心距 | Load center distance | c | mm | 500 |
| 1.7 | 前懸距 | Axle centre to fork face | x | mm | 375 |
| 1.8 | 軸距 | Wheelbase | y | mm | 1623 |
| 重量Weight | |||||
| 2.1 | 自重(含電瓶) | Service weight (include battery) | kg | 3870 | |
| 2.2 | 橋負荷,貨叉前移 空載驅動端/承載端 | Axle loading ,Pallet fork forward,unladen front/rear | kg | 2242/1628 | |
| 2.3 | 橋負荷,貨叉后移 空載驅動端/承載端 | Axle loading ,Pallet fork back,unladen front/rear | kg | 2392/1478 | |
| 2.4 | 橋負荷,貨叉前移 滿載驅動端/承載端 | Axle loading ,Pallet fork forward,laden front/rear | kg | 1648/3722 | |
| 2.5 | 橋負荷,貨叉后移 滿載驅動端/承載端 | Axle loading ,Pallet fork back,laden front/rear | kg | 2274/3096 | |
| 輪胎 ,底盤Types,Chassis | |||||
| 3.1 | 輪胎類型,驅動輪/承載輪 | Tyre type driving wheels/loading wheels | 聚氨酯 | ||
| 3.2 | 驅動輪尺寸(直徑×寬度) | Tyre size, driving wheels(diameter×width) | mm | Φ343×132 | |
| 3.3 | 承載輪尺寸(直徑×寬度) | Tyre size, loading wheels(diameter×width) | mm | Φ125×82 | |
| 3.4 | 平衡輪尺寸(直徑×寬度) | Tyre size, caster wheels(diameter×width) | mm | Φ178×73 | |
| 3.5 | 驅動輪,平衡輪/承載輪數量(x=驅動輪) | Wheels, number driving,caster/loading (x=drive wheels) | mm | 1x,2/4 | |
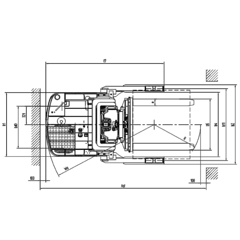
| 3.6 | 前輪距,驅動端 | Track width, front,driving side | b10 | mm | 735 |
| 3.7 | 后輪距,承載端 | Track width,rear,loading side | b11 | mm | 1260 |
| 尺寸 Dimensions | |||||
| 4.1 | 門架/貨叉傾斜 前傾/后傾 | Mast/fork carriage tilt, forward/backward | a/b | (°) | 2/4 |
| 4.2 | 最低門架高度 | Height of mast, lowered | h1 | mm | 2449 |
| 4.3 | 自由提升高度 | Free lift | h2 | mm | 1350 |
| 4.4 | 標配最大起升高度 | Lift height | h3 | mm | 5000 |
| 4.5 | 貨叉下降后叉面高度 | Lowered height | h13 | mm | 50 |
| 4.6 | 整車長度 | Overall length | l1 | mm | 2600 |
| 4.7 | 到貨叉垂直面的長度 | Length to face of forks | l2 | mm | 1522 |
| 4.8 | 整體寬度 | Overall width | b1/ b2 | mm | 1120/1390 |
| 4.9 | 貨叉尺寸 | Fork dimensions | s/ e/ l | mm | 40/120/1070 |
| 4.10 | 貨叉外寬 | Distance between fork-arms | b5 | mm | 300-600 |
| 4.11 | 軸距中心處離地間隙 | Ground clearance, center of wheelbase | m2 | mm | 46 |
| 4.12 | 前移距離 | Reach distance | l4 | mm | 570 |
| 4.13 | 托盤為 1200寬 × 1000長的通道寬度 | Aisle width for pallets 1000 × 1200 crossways | Ast | mm | 2970 |
| 4.14 | 托盤為800寬 × 1200長的通道寬度 | Aisle width for pallets 800 × 1200 lengthways | Ast | mm | 3020 |
| 4.15 | 最小轉彎半徑 | Turning radius | Wa | mm | 1905 |
| 性能參數 Performance data | |||||
| 5.1 | 行走速度,滿載/空載 | Travel speed, laden/ unladen | km/h | 9/9.5 | |
| 5.2 | 起升速度,滿載/空載 | Lifting speed, laden/ unladen | m/ s | 0.19/0.24 | |
| 5.3 | 下降速度,滿載/空載 | Lowering speed, laden/ unladen | m/ s | 0.3/0.34 | |
| 5.4 | 前移速度,滿載/空載 | Reach speed,laden/unladen | m/ s | 0.1/0.11 | |
| 5.5 | 最大爬坡度,滿載/空載 | Max. gradeability, laden/unladen | % | 6/10 | |
| 5.6 | 加速時間,滿載/空載 | Acceleration time with/without load | s | - | |
| 5.7 | 制動類型 | Service brake type | 電磁制動 | ||
| 電機,動力源 Electric-engine | |||||
| 6.1 | 驅動電機額定功率 S2 60分鐘 | Drive motor rating S2 60 min | kW | 6.0 | |
| 6.2 | 起升電機額定功率 S3 15% | Lift motor rating at S3 15% | kW | 11 | |
| 6.3 | 電瓶允許最大尺寸 | The maximum allowed size battery | mm | 1010x345x780 | |
| 6.4 | 電瓶電壓/標稱容量 K5 | Battery voltage/nominal capacity K5 | 48/420 | ||
| 6.5 | 電瓶重量 | Battery weight | kg | 720 | |
| 6.6 | 能耗 ,根據VDI循環 | Energy consumption acc. to VDI cycle | kW/h | - | |
| 其他數據 Addition data | |||||
| 8.1 | 驅動控制類型 | Type of drive control | 交流速度控制 | ||
| 8.2 | 轉向類型 | Steering type | 電轉 | ||
| 8.3 | 噪音等級 | Sound pressure level at the driver’s ear | dB(A) | ≤70 | |



電話: 400-996-7021






