產品描述
						
						
| 全電動托盤堆垛車(步行式)參數Technical Data | |||||
| 特征Characteristics | |||||
| 1.01 | 型號 | Model | CL1545GF | CL2030GF | |
| 1.02 | 驅動方式 | Power uni | 電動(Electric) | 電動(Electric) | |
| 1.03 | 操作方式 | Operation | 步行式(Pedestrian) | 步行式(Pedestrian) | |
| 1.04 | 額定載荷能力 | Rated traction weight | Q(kg | 1500 | 2000 | 
| 1.05 | 載荷中心距 | Load centre | c(mm) | 600 | 600 | 
| 1.06 | 前懸距 | Axle centre to fork face | x(mm) | 672 | 672 | 
| 1.07 | 軸距 | Wheel base | Y(mm | 1384 | 1384 | 
| 1.08 | 白重(含電瓶) | Service weight with battery | kg | 980 | 966 | 
| 輪子、底盤Wheels/Tyres | |||||
| 2.01 | 輪胎類型 | Wheels type | 聚氨酯(PU) | 聚氨酯(PU) | |
| 2.02 | 驅動輪尺寸 | Driving wheel size | φxw(mm) | φ230×75 | φ230×75 | 
| 2.03 | 承截輪尺寸 | Bearing wheel size | φxw(mm) | 080x70 | 080x70 | 
| 2.04 | 平衡輪尺寸 | additional wheels (dimensions) | φxw(mm) | φ150×58 | φ150×58 | 
| 2.05 | 驅動輪,平衡輪/承載輪數量(x=驅動輪) | Wheels,number front/rear (x=driven) | 1x+1/4 | 1x+1/4 | |
| 2.06 | 輪距,驅動端 | Track width | b10(mm) | 526 | 526 | 
| 2.07 | 輪距,承載端 | Track width | b11(mm) | 390/515 | 390/515 | 
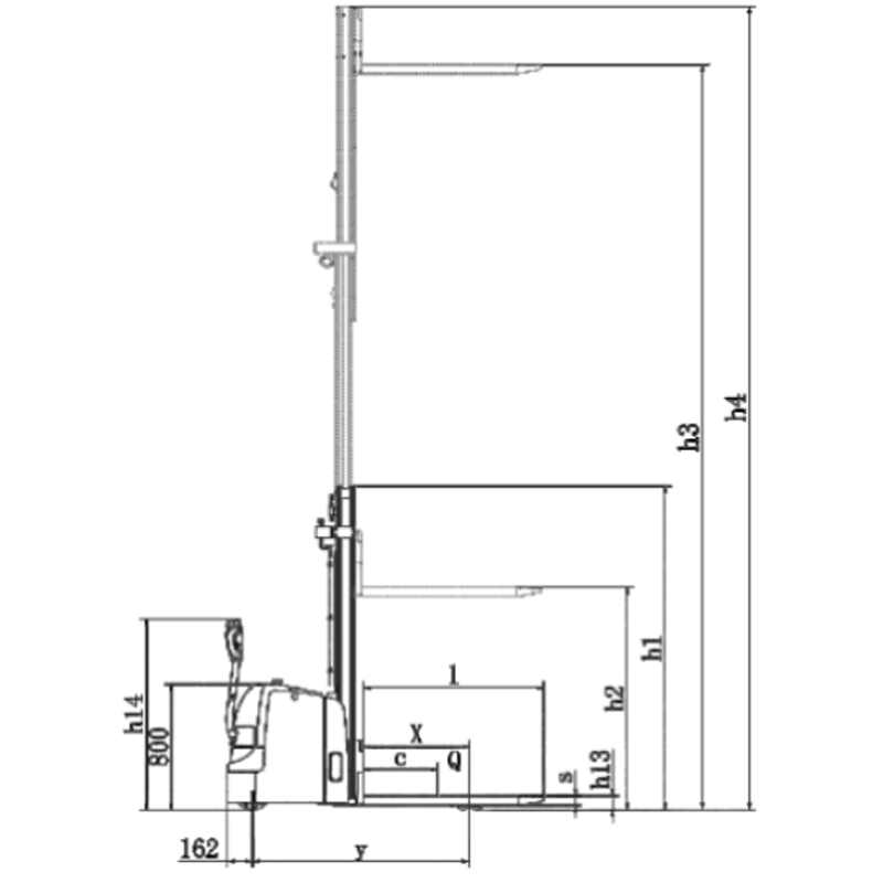
| 尺寸Dimensions | |||||
| 3.0 | 最低門架高度 | Free lift | h1(mm | 2054 | 1991 | 
| 3.02 | 自由提升高虛 | Lift | h2 (mm) | 166 | 166 | 
| 3.03 | 提升高度 | Height ol mast,extended | h3 (mm) | 4500 | 3000 | 
| 3.04 | 門架最大高度 | Height of seat/stand-on platform | h4(mm) | 5060 | 3408 | 
| 3.05 | 操作位置手柄桿最小最大高座 | Overall height(With handle | h14(mm) | 870/1200 | 870/1200 | 
| 3.06 | 貨叉最低高度 | Lowered fork height | h13(mm) | 86 | 86 | 
| 3.07 | 整車長度 | Overall length | 11(mm) | 2022 | 2022 | 
| 3.08 | 車體長度 | Length to fork face | 12(mm) | 872 | 872 | 
| 3.09 | 整車寬度 | Overall width | b1/b2(mm) | 795 | 795 | 
| 3.10 | 貨叉尺寸 | Fork dimensions | s/e/1 (mm) | 60/180/1150 | 60/180/1150 | 
| 3.1 | 貨叉外寬 | Width of lorks | b5(mm) | 570/695 | 570/695 | 
| 3.12 | 軸距中心處離地間隙 | Min.Ground clearance | m2(mm) | 26 | 26 | 
| 3.13 | 通道寬度:1000x1200托盤(1200跨貨又放置) | Aisle width with pallet 1000x1200 across forks | Ast(mm) | 2435 | 2435 | 
| 3.14 | 通道寬度:800x1200托盤(1200沿貨又放置) | Aisle width with pallet 800x1200 along forks | Ast(mm) | 2412 | 2412 | 
| 3.15 | 轉彎半徑 | Min.Turning radius | Wa(mm) | 1550 | 1550 | 
| 性能Performance | |||||
| 4.01 | 行走速度,滿載/空載 | Travel speed,laden/unladen | (km/h) | 4.0/4.2 | 4.0/4.2 | 
| 4.02 | 提升速度,滿載/空載 | Lifting speed,with/without load | (mm/s) | 80/210 | 80/210 | 
| 4.03 | 下降速度,滿載/空載 | Lowering speed,with/without load | (mm/s) | 152/160 | 152/160 | 
| 4.04 | 最大爬坡度,滿載空載 | Maximum climbing ability,with/without koad | (%) | 4/10 | 4/10 | 
| 4.05 | 制動類型 | Service brake | 電磁制動(Elactromagnetic) | 電磁制動(Elactromagnetic) | |
| 電機Drive | |||||
| 5.0 | 樞動電機功率 | Drive motor,60 minute rating | (kW) | 1.5 | 1.5 | 
| 5.02 | 起升電機功率 | Lift motor rating at S315% | (kW) | 3.0 | 3.0 | 
| 5.03 | 蓄電池電壓/容量 | Battery voltage/rated capacity | (V/Ah) | 24/210 | 24/210 | 
| 5.04 | 電油重量(±5%) | Battery weight (±5%) | (kg) | 195 | 195 | 
| 其它Other | |||||
| 6.01 | 驅動控制類型 | Type of drive control | 交流速度控制(AC) | 交流速度控制(AC) | |
| 6.02 | 噪音水平 | Noise level at operator 's ear | (dB(A)) | ≤70 | ≤70 | 
| 6.03 | 轉向類型 | Type of steering | 機械轉向(Mechanical steering) | 機械轉向(Mechanical steering) | |

 電話: 400-996-7021						
							
																
																
																
																
																
																
																
																
																



										
										
										
										